Александр Смирнов
Александр Смирнов
Специалист
или оставьте ваш номер,
и я перезвоню в течение 5 минут
Нажимая на кнопку, вы даете своё согласие на обработку персональных данных и соглашаетесь с политикой конфиденциальности

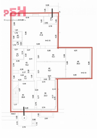
Сдается помещение свободного назначения, площадью 398.70 кв.м, расположенное по адресу: Нефтекамск г, Нефтяников ул, 3

- помещение находится в густонаселенном районе города, вокруг много высотных новостроек
- 2 входа (основной с улицы и запасной со двора)
- 1-ый этаж 189,1 кв.м.высота потолков 3,1 м.
- подвал 209,6 кв.м. с окнами, высота потолков 2,45 м.
- в помещении имеется 2 санузла 
- есть все коммуникации, установлена система принудительной вентиляции
- по соседству работают продуктовый магазин Пятерочка, пвз Wildberries, стоматология Номер объекта: #5/545776/8379
Расположение

Нефтяников ул, 3

Похожие объекты

Посмотреть другие объявления в этой категории